广谈大湾网

[装饰设计] 107平三房终于布置齐家具,全屋地面铺灰色瓷砖非常耐脏...

2025-11-6 15:24:04 31621 0

[复制链接]
在回忆中 未绑定微信 发表于 2025-11-6 15:24:04 |阅读模式

在回忆中 未绑定微信 楼主

2025-11-6 15:24:04

很多人在装修的时候可能都在纠结,家里地面到底是铺木地板还是铺贴瓷砖?其实这是根据自己家的实际情况需求决定了,不管是瓷砖还是木地板都不影响,只要一家人能满意。
很开心这次给大家带来屋主她家这套107平三房的户型,套内面积85平左右,其实空间还是比较宽敞的。从去五月份开工到现在,终于布置齐家具,一家人都很开心。不过还没来得及添置软装部分,到时候一些软装进场效果会更完美。值得一提的是,考虑到家里有小孩,并且家里安装了地暖,,所以考虑了很长一段时间最终地面选择铺贴灰色瓷砖,效果非常耐脏,看着都很满意。给大家分享一下,欢迎大家点评!
7adad1321c8d27456e02476979ea4e21.jpg
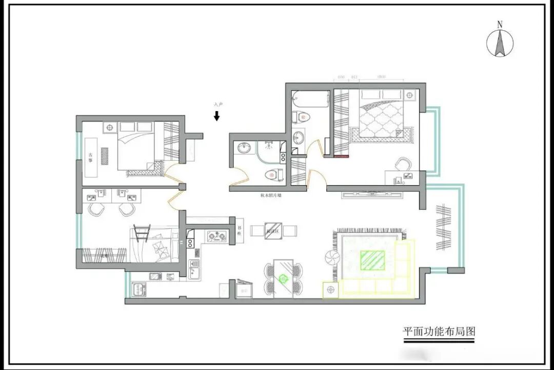
户型上中规中矩,不是很好也不是很差,不过很庆幸的是,室内采光与通风还是蛮不错的,户型还算比较方正,有两个卫生间非常方便使用。客厅和餐厅是在同一个空间,并且与阳台打通,基本户型布局就是这样子了!
0bd1b6ab0ed0b31a99ba6c8c5b32754f.jpg
从入户大门进来拥有独立的玄关,设计了一个上下两层的鞋柜,不过最底下没有留空位置,不影响使用。鞋柜直接到顶,半点空间都没有浪费,以后生活过程中,可以满足大量的储物需求。而且墙面刷了蓝色,搭配白色的门套和踢脚线,给人一种清新舒适感。大门贴了灰色的门毛毡,改变了之前原来猪肝红的颜色,同时与空间刚好完美搭配。这样做可以节省一些开支,同时不需要换门那么麻烦,真心不错。
17c0362ffa9ccd5d8f561cdfd09733ba.jpg
入户大门直接正对着这面墙也设计了柜子,刚好把空间给利用起来,觉得还不错哈。柜子都是全屋定制,质量与做工都还不错,让人打开门第一眼看到,觉得这个家特别实用。对于一个家来说,柜子是不可缺少的一部分,宁愿多几个,也不愿意少。
e257bc78e123d233b329c374f6fe6c48.jpg
餐厅布置一张岩板材质的方形餐桌,虽然不是大理石,但是不影响使用。到时候餐厅上还需要套餐布,更显得有家的味道。搭配的牛角餐椅屋主直接选择网购的,款式还是蛮不错的,搭配起来很协调,坐着很舒服。旁边一个非常实用的餐边柜,可以适当增加一些储物空间。最底下留空设计了地暖风口,觉得还不错,很有设计感。
3fa55fa81db32c9adb231198ab0c992d.jpg
餐边柜旁边,也就是厨房门旁边的位置可以放双开门的冰箱。冰箱也是选择网购的,刚好赶在“618”,比平时节省了很多,并且还送货上门。对开门无霜冰箱保鲜质量更好,同时不会有串味的情况,这点无需担心,大牌子值得信赖。
安装了比较常见的黑色边框透明推拉门,可以为餐厅带来一些采光,并且空间显得通透,而且煮好的饭菜可以很快端出来,觉得还不错。
db248848f2dc3330b69ebabc09411cff.jpg
厨房空间小,定制了“L”字型蓝色的橱柜,刚好把空间利用起来。屋主比较喜欢蓝色,其实也是与全屋地面铺贴的灰色瓷砖刚好搭配,非常耐脏,效果也好看。水槽与灶台布局形成了“洗、切、炒”的顺序,非常方便使用。
5cc96d7c0161337d019ae66724d720b0.jpg
考虑到需求,安装了蒸烤箱一体的集成灶,相对占用的空间小,并且颜值很高,功能性相对比较强大,即使两个火炉同时打开使用都不会有什么影响。油烟处理很好,不害怕爆炒,同时也不会担心碰到头,而且也比较节省一些空间,做保洁也方便。
920400779ae6797d0c9ab5643bd30197.jpg
准备来说,客厅和餐厅是在同一个空间,中间没有做任何的隔断,相对空间显得宽敞很多,尤其是与阳台打通,可以更好把阳台空间利用起来。地面选择铺贴灰色瓷砖,非常耐脏,更容易搭配。铺贴灰色瓷砖,不经常打扫其实肉眼也看不到脏的地面,觉得不错,屋主一家人都满意。
1b8214c0aa9a110f5b2d7183fbb9b7ba.jpg
客厅电视背景墙没有做任何造型,直接就是使用蓝色的墙体,简单又好看。电视机直接挂墙上,比放在电视柜节省空间,不过电视机的尺寸稍微低一些,会更合理。网购的电视机质量还不错,尺寸足够强大,并且4K超高清画质,音质也比较靠谱,比实体店便宜太多啦。当时屋主挑选了很长一段时间,最终选择了这款电视机,更智能一些。
58fc161a717c1be6bcd3364da74af01c.jpg
主卧床头背景墙选择了绿色,视觉感很抢眼,其实现在比较流行这样的,很漂亮。布置了一张偏黄色的创人大床,背景墙完美搭配,不过床上的被单是直接搭配的,可以忽略哈。顶面没有选择安装吊顶,仅仅走了一圈石膏线条。全屋地面选择铺贴灰色瓷砖,做了地暖不影响。
961b83db0d9f9cb9f446e6c22ad6f5e4.jpg
床对面设计了一个衣柜,设计了三个抽屉和两个挂衣区,收纳衣物的时候方便很多。安装的拉手尺寸都比较大,显得很大气。
ac450ea2d6633a9417266613a3702afa.jpg
利用主卧过道的一些位置设计了洗衣区,刚好可以放洗衣机和烘干机,平时使用其实不担心噪音影响,屋主还是比较能接受的。而且旁边设计了柜子,可以适当增加一些储物空间。
6e8c8b553a293f990456a806671228a6.jpg 0898a21a44cbcaf7d89e1ca1e6e06245.jpg
书房兼并客房,定制了非常实用的榻榻米,可以提供大量的储物空间。榻榻米刚好把仅有的空间利用起来,并且空间可以达到最大利用化。即使作为家里小孩,也非常合适。榻榻米做了防潮处理,不担心以后出现问题。
5fae593b18e0576a87bdb2d722827f55.jpg 9d8fd08fef1c659ebc66e40c28629855.jpg
屋主家有两个孩子,没有选择布置上下床,为了更权衡两个孩子,谁也没有偏袒谁,所以布置了两张单人床,床的款式都是一样的。其实这样也有利于家里两个孩子从小的感情交流,可以沟通,觉得很有必要哈。
12722ba5df2f32dfc28401bb678658f8.jpg
布置了书桌,可以方便家里小孩写作业或者看书。墙上安装了非常实用的洞洞板,可以适当增加一些储物空间,一些零碎的小东西方便收纳起来,颜值还很高呢!
3c8c8c73f4f7ad007c6bca5414b9c33c.jpg
门口旁边的位置为了不浪费空间,布置了小衣柜,非常实用。家里小孩以后入住了,东西会越来越多,特别需要这样的储物空间。
c6afdfccb2f78c51c6fb45d3bf1b4aa2.jpg
主卫没有选择做干湿分离,但是不影响使用。安装了非常实用的智能马桶,其实也是可以起到防水的作用。同时安装了电热毛巾架,可以方便挂毛巾,使得毛巾干透,不会潮湿。
61d1797f1a85cac812540897fbd53a2e.jpg
客卫其实安装的智能马桶包括墙上安装的毛巾风暖架都是跟主卫一样的款式,家里使用一些智能家居对生活带来的便利还是蛮不错的。
6c979bf78f7c3e4c23d52c999a442de8.jpg
电热毛巾架可以保证以后的毛巾很快干透,有烘干功能和杀菌功能,这点觉得很重要哈!电热毛巾架给人一种比较好高大上的感觉,比普通的毛巾架高一个层次,颜值也很高啊!
5d0c3dd4a0806e35bff904b723c32d87.jpg 02664919363f9269abc6e0b7eeb596a3.jpg
客厅阳台顶面安装了晾衣架,平时可以晾晒衣物,并且安装了烘干机所以不影响。布置了小桌子,可以在这里吃吃早餐或者喝茶聊天,觉得太幸福啦!
辛苦那么长时间终于可以添置齐家具了,越来越有家的味道,尤其是全屋选择铺贴灰色瓷砖颜值很高,也很耐脏。到时候把一些软装搭配进来,再把一些生活必需品弄进来,挑选一个合适的日子就可以入住啦。最后,祝愿他们一家生活越来越幸福,也希望大家能喜欢!
来源:简易装修、如有侵权请联系删除
回复

使用道具 举报

:
高级会员
:
未填写
:
未填写
:
未填写

主题150

帖子153

积分963

图文推荐

  • 鱼头炖汤,最忌鸡精味精!教你2个技巧,鱼

    今天做一锅鱼头豆腐汤,鱼汤奶白浓郁,只鲜不腥。

  • 鲜嫩到“跳舞”:解锁清蒸鲈鱼的零失败秘籍

    先得把主角——鲈鱼请上场。买鱼的时候,最好挑

  • 100元一碗的面馆后厨曝光,“网红店应接受

    近日,上海徐汇区市场监管局针对网红餐饮店展开执

  • 减肥也可以吃的小甜品,无油低糖不长肉,做

    今天要做的甜品是一道华夫饼,由于里边加了草莓果

  • 冬天气候干燥,建议多吃这3样食物,胶原蛋

    一、鱼皮——凉拌鱼皮鱼皮中所含的胶原蛋白,含有

  • 发布新帖

  • QQ客服

  • 微信公众号

  • 移动端

  • 返回顶部